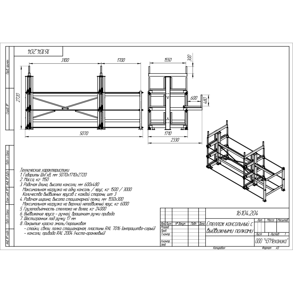
Стеллаж консольный четыре яруса хранения. Стеллаж с выдвижными полками двухсторонний. Консольный стеллаж с механическим выдвижением полок — современное решение для хранения труб и металлопроката.
Технические данные:
- Модель стеллажа – серия 16104
- Тип – Двухсторонний.
- Максимальная длина груза – 6000 мм.
- Количество ярусов – 6 выдвижных + 1 стационарный.
- Максимальная нагрузка на выдвижную полку (ярус) – 3 000 кг.
- Выдвижение полок – 100% .
- Привод выдвижения – механизированное, ручным вращением привода.
- Максимальная нагрузка на верхнюю стационарную полку (ярус) – 6 000 кг.
- Грузоподъемность стеллажа не более – 24 000 кг.
- Объём выдвижной полки – 600х480 мм.
- Объем стационарной полки – 1550х300 мм.
- Базовый цвет: стойки и связи: антрацитово – серый (Ral 7016). Консоли и приводы: оранжевый (Ral 2004).
- Гарантия – 1 года.















































































Отзывы
Отзывов пока нет.